Монтажный комплект VESA к задней панели дисплея
VM 100 K
Под заказ
Ищете комплексное решение?
Чтобы наши специалисты грамотно подобрали Вам решение - заполните форму технического задания.
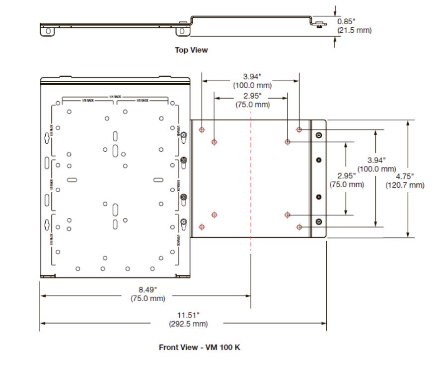
Монтажный комплект VM 100 стандарта VESA предназначен для закрепления устройства Extron на задней панели дисплеев. VM 100 включает в себя монтажную панель для дисплея и базовую панель для устройств, совместимую с монтажными шаблонами VESA 75 мм и 100 мм. Система крепления может быть расширена за счёт дополнительных базовых панелей, которые продаются отдельно. Монтажный комплект VM 100 не только упрощает интеграцию, но и позволяет надёжно и незаметно установить устройства, такие как приёмник, усилитель, небольшой ПК или блок питания на задней панели плоского дисплея за считанные минуты. Удобное размещение устройств позади дисплея
- Компактная система стандарта VESA для монтажа на дисплей в четверть ширины стойки, высотой 50,8 мм и глубиной 152,4 мм
- VM 100 K включает в себя монтажную панель VESA для дисплея и базовую панель VM 100 P для устройств
- Доступны опциональные панели VM 100 P для дальнейшего расширения
- Поддержка монтажных шаблонов VESA 75 мм x 75 мм и 100 мм x 100 мм
- Выдерживает установленные устройства общим весом до 2,27 кг
- Опциональная крышка VM 100 C обеспечивает дополнительную безопасность и эстетичный внешний вид
Схема AV системы
Чертежи
Информация для заказа
| Артикул | Наименование | Партномер |
| VM 100 K | VESA Комплект для крепления | 70-1269-01 |
Технические характеристики
Аксессуары:
Документация:
VM 100 VESA Спецификации (eng)
(438.38 Кб, *.pdf)
VM 100 Series Руководство по установке (eng)
(1.95 Мб, *.pdf)
.































































